Der Rat der Gemeinde Buchholz (Aller) hat in seiner Sitzung am 29.03.2017 dem Entwurf der 1. Änderung des Bebauungsplans Nr. 20 „Berkhofer Weg II“ mit örtlicher Bauvorschrift und der Begründung zugestimmt und die öffentliche Auslegung gem. § 3 Abs. 2 BauGB beschlossen.
Die 1. Änderung des Bebauungsplans Nr. 20 „Berkhofer Weg II“ wird im vereinfachten Verfahren nach § 13 BauGB aufgestellt. Von einer Umweltprüfung nach § 2 Abs. 4 BauGB wird abgesehen.
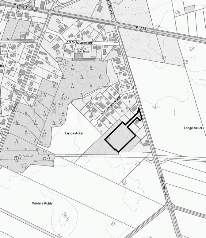
Der räumliche Geltungsbereich der 1. Änderung des Bebauungsplans Nr. 20 „Berkhofer Weg II“ liegt im Ortsteil Marklendorf südlich der B 214 und östlich der Straße Berkhofer Weg im Anschluss an das Baugebiet „Am Langen Acker“. Die Grenze des räumlichen Geltungsbereichs ist im folgenden Kartenausschnitt verdeutlicht:

Die öffentliche Auslegung des Entwurfs der 1. Änderung des Bebauungsplans Nr. 20 „Berkhofer Weg II“ mit örtlicher Bauvorschrift und der Begründung gem. § 3 Abs. 2 BauGB erfolgt von Dienstag, den 18. April 2017, bis einschließlich Donnerstag, den 18. Mai 2017, in der Gemeindeverwaltung im Rathaus (Zimmer 36) in Schwarmstedt, Am Markt 1, während folgender Zeiten:
Montag bis Freitag: 8.30 bis 12.00 Uhr
Donnerstag: außerdem 14.00 bis 18.00 Uhr
und nach telefonischer Vereinbarung (Tel.: 0 50 71 / 8 09 - 36) auch zu anderen Zeiten.
Während der öffentlichen Auslegung können Stellungnahmen zum Entwurf der 1. Änderung Bebauungsplans Nr. 20 „Berkhofer Weg II“ mit örtlicher Bauvorschrift und der Begründung schriftlich oder mündlich zur Niederschrift bei der Gemeinde Buchholz (Aller) abgeben.
Hinweise:
Nicht fristgerecht abgegebene Stellungnahmen können bei der Beschlussfassung über die 1. Änderung und Ergänzung des Bebauungsplans Nr. 21 „Schwarzer Berg“ unberücksichtigt bleiben.
Ein Antrag nach § 47 der Verwaltungsgerichtsordnung (Normenkontrolle) ist unzulässig, soweit mit ihm Einwendungen geltend gemacht werden, die vom Antragsteller im Rahmen der Auslegung nicht oder verspätet geltend gemacht wurden, aber hätten geltend gemacht werden können.
Schwarmstedt, den 04.04.2017
GEMEINDE BUCHHOLZ (ALLER)
Der Gemeindedirektor
gez. Gehrs

Aktuelles
Ältere amtliche Bekanntmachungen
Veranstaltungen in der Samtgemeine Schwarmstedt